Rodinný dům G6 6+kk
49.990.000,- Kč vč. DPH
SITUACE | |
|---|---|
PLOCHA POZEMKU | 1372 m2 |
ZASTAVĚNÁ PLOCHA | 259,5 m2 |
VNITŘNÍ ÚŽITNÁ PLOCHA | 310,1 m2 |
ZPĚVNĚNÉ PLOCHY | 186,8 m2 |
ZAHRADA | 925,7 m2 |
1.NP | ||
|---|---|---|
1.01 | VSTUPNÍ ZÁDVEŘÍ | 11,2 m2 |
1.02 | SCHODIŠŤOVÝ PROSTOR | 17,7 m2 |
1.03 | OBÝVACÍ POKOJ A KUCH. KOUT | 89,1 m2 |
1.04 | PRACOVNA | 19,2 m2 |
1.05 | CHODBA | 5,5 m2 |
1.06 | ŠATNA | 5,1 m2 |
1.07 | KOUPELNA A WC | 4,6 m2 |
1.08 | GARÁŽ | 46,7 m2 |
1.09 | TECHNICKÁ MÍSTNOST | 10,0 m2 |
1.10 | ŠPÍZ | 3,7 m2 |
CELKEM | 212,8 m2 | |
1.11 | TERASA | 90,8 m2 |
Z TOHO ČÁST KRYTÁ PERGOLOU | 28,0 m2 | |
1.12 | ZÁVĚTŘÍ | 4,3 m2 |
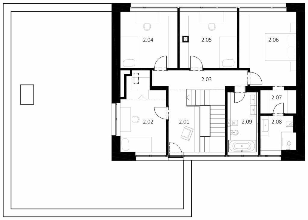
2.NP | ||
|---|---|---|
2.02 | SCHODIŠŤOVÝ PROSTOR | 8,3 m2 |
2.01 | POKOJ 1 | 14,6 m2 |
2.03 | CHODBA | 8,6 m2 |
2.04 | POKOJ 2 | 14,6 m2 |
2.05 | POKOJ 3 | 14,6 m2 |
2.06 | LOŽNICE | 18,4 m2 |
2.07 | ŠATNA | 4,1 m2 |
2.08 | KOUPELNA A WC | 5,7 m2 |
2.09 | KOUPELNA A WC | 8,4 m2 |
CELKEM | 97,3 m2 | |
LEGENDA POVRCHŮ | |
|---|---|
![]() | TENKOVRSTVÁ OMÝTKA – BARVA BÍLÁ |
![]() | OKENNÍ A DVEŘNÍ RÁMY – BARVA ŠEDÁ |
![]() | KERAMICKÝ OBKLADOVÝ PÁSEK – BARVA BÍLÁ |
![]() | ZÁBRADLÍ – SKLO |
![]() | VENKOVNÍ ŽALUZIE – BARVA ŠEDÁ |




