POZEMEK H2 RD 5+kk
PRODÁNO
SITUACE | |
|---|---|
PLOCHA POZEMKU | 969 m2 |
ZASTAVĚNÁ PLOCHA | 285,3 m2 |
VNITŘNÍ ÚŽITNÁ PLOCHA | 273,6 m2 |
ZPĚVNĚNÉ PLOCHY | 118,6 m2 |
ZAHRADA | 561,6 m2 |
1.PP | ||
|---|---|---|
0.01 | GARÁŽ | 56,5 m2 |
0.02 | VSTUPNÍ CHODBA | 14,3 m2 |
0.03 | CHODBA A SCHODIŠTĚ | 12,3 m2 |
0.04 | SKLAD | 3,5 m2 |
0.05 | KOMORA | 2,1 m2 |
0.06 | ŠATNA | 13,3 m2 |
CELKEM | 102 m2 | |
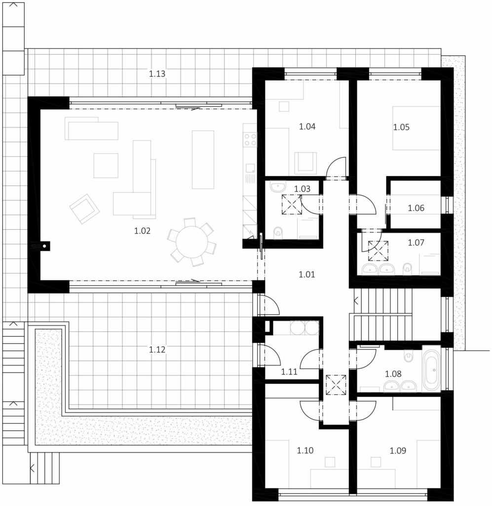
1.NP | ||
|---|---|---|
1.01 | CHODBA | 19,6 m2 |
1.02 | OBYVACÍ POKOJ S KUCHYNÍ | 65,4 m2 |
1.03 | KOUPELNA | 5,6 m2 |
1.04 | POKOJ | 14,4 m2 |
1.05 | POKOJ | 17,3 m2 |
1.06 | ŠATNA | 4,4 m2 |
1.07 | KOUPELNA | 6,3 m2 |
1.08 | KOUPELNA | 6,7 m2 |
1.09 | POKOJ | 13,4 m2 |
1.10 | POKOJ | 12,9 m2 |
1.11 | TECHNICKÁ MÍSTNOST | 5,6 m2 |
CELKEM | 171,6 m2 | |
1.12 | TERASA | 38,5 m2 |
1.13 | TERASA | 25,0 m2 |
LEGENDA POVRCHŮ | |
|---|---|
![]() | TENKOVRSTVÁ OMÝTKA – BARVA BÍLÁ |
![]() | OKENNÍ A DVEŘNÍ RÁMY – BARVA ŠEDÁ |
![]() | KERAMICKÝ OBKLADOVÝ PÁSEK – BARVA BÍLÁ |
![]() | VENKOVNÍ ŽALUZIE – BARVA ŠEDÁ |



