POZEMEK H1 RD 5+kk

25.000.000,- Kč vč. DPH
SITUACE
PLOCHA POZEMKU
1353 m2
ZASTAVĚNÁ PLOCHA
213,2 m2
VNITŘNÍ ÚŽITNÁ PLOCHA
317,4 m2
ZPĚVNĚNÉ PLOCHY
138,2 m2
ZAHRADA
989,0 m2
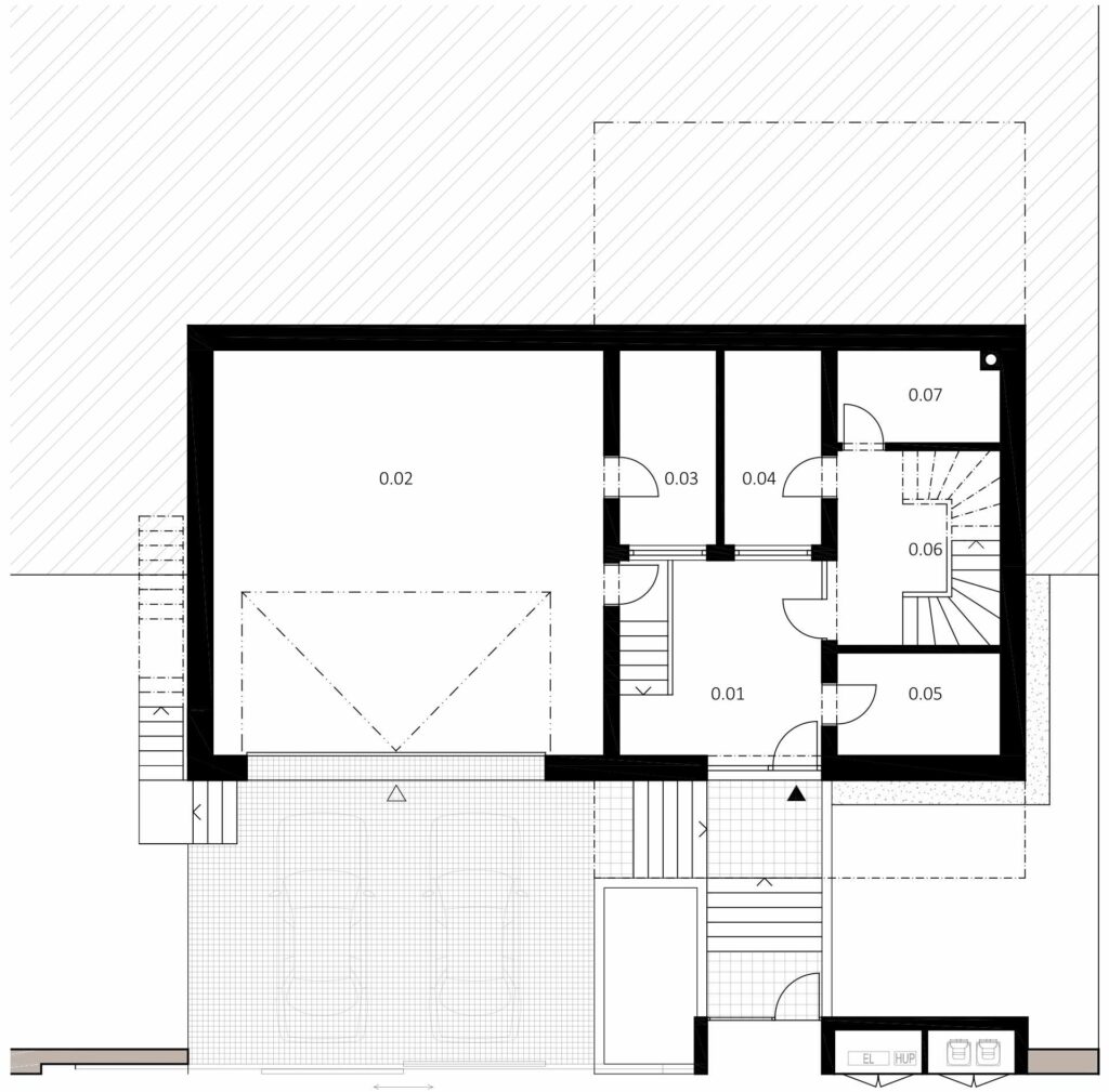
1.PP
0.01
VSTUPNÍ ZÁDVEŘÍ
17,3 m2
0.02
GARÁŽ
66,9 m2
0.03
SKLAD
8,0 m2
0.04
SKLAD
8,0 m2
0.05
ŠATNA
7,1 m2
0.06
CHODBA A SCHODIŠTĚ
14,2 m2
0.07
TECHNICKÁ MÍSTNOST
6,2 m2
CELKEM
127,7 m2
1.NP
1.01
CHODBA
9,0 m2
1.02
KOUPELNA
6,1 m2
1.03
POKOJ
13,2 m2
1.04
OBYVACÍ POKOJ S KUCHYNÍ
76,5 m2
CELKEM
104,8 m2
1.05
TERASA
111,4 m2
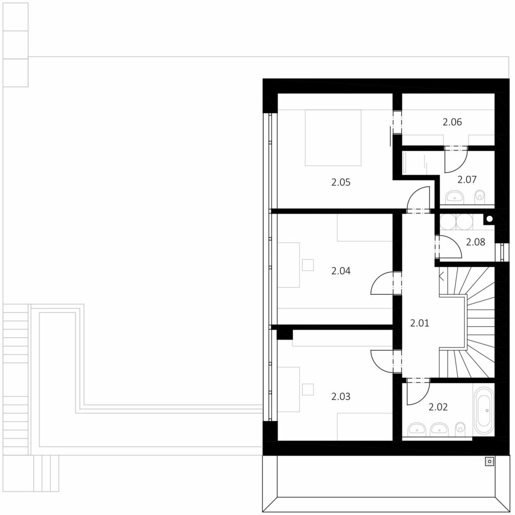
2.NP
2.01
CHODBA
10,6 m2
2.02
KOUPELNA
6,9 m2
2.03
POKOJ
16,4 m2
2.04
POKOJ
16,6 m2
2.05
POKOJ
18,8 m2
2.06
ŠATNA
6,8 m2
2.07
KOUPELNA
5,4 m2
2.08
KOMORA
3,4 m2
CELKEM
84,9 m2
LEGENDA POVRCHŮ
TENKOVRSTVÁ OMÝTKA – BARVA BÍLÁ
OKENNÍ A DVEŘNÍ RÁMY – BARVA ŠEDÁ
KERAMICKÝ OBKLADOVÝ PÁSEK – BARVA BÍLÁ
VENKOVNÍ ŽALUZIE – BARVA ŠEDÁ